Listed by Daniel Hickman of Real Broker

Listing Sold by Better Homes & Gardens Real Estate/The Masiello Group
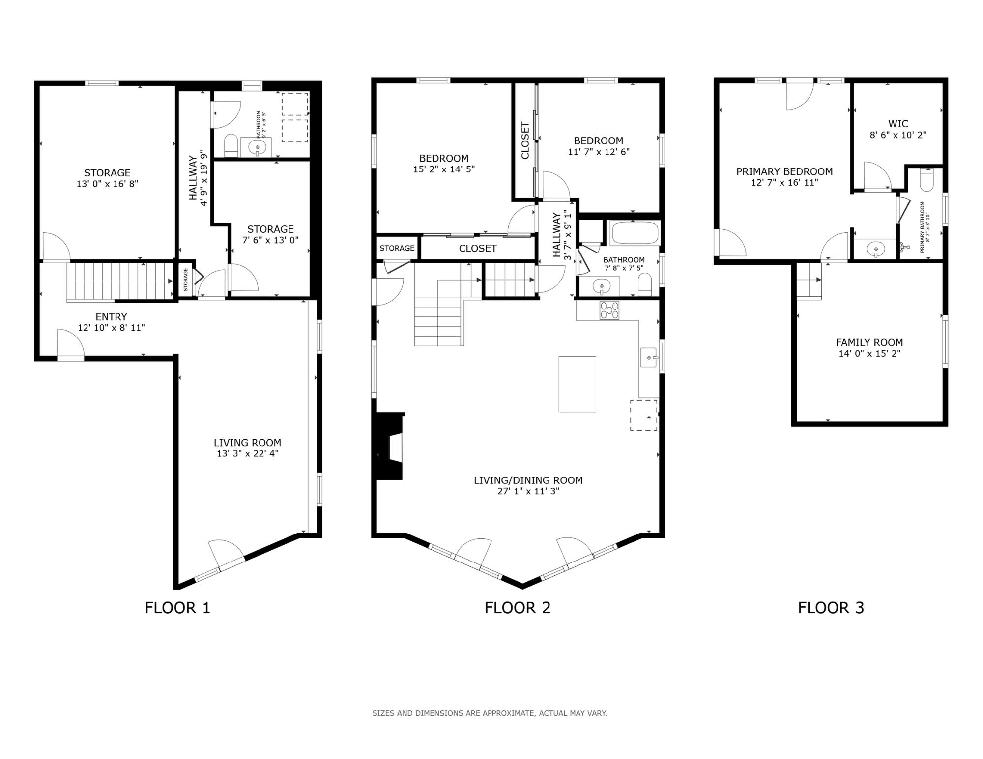
Welcome to 144 Kezar Heights, one of Bridgton's most desirable neighborhoods. This custom contemporary Cape in the Mountain View community offers privacy, quality finishes, and up-close views of Pleasant Mountain and the rolling hills of Western Maine. Set on a gently sloping, landscaped lot with perennial gardens, the home's southern exposure brings in natural light through a dramatic wall of glass. Cathedral ceilings with exposed beams define the open-concept living and dining areas. A striking stone gas fireplace serves as the centerpiece-both a visual anchor and a welcoming place to gather. Hardwood floors run throughout. The custom kitchen features stone countertops, gas appliances, a pot-filler faucet, and cabinetry designed for both function and style. A window over the sink looks out to the Western Maine hills. The main level includes two bedrooms and a full bath. At the top of the stairs, a lofted bonus area with a sleek glass-railed overlook offers space for a home office, gym, or reading nook-open to the great room below. Beyond the loft, the private primary suite includes a large walk-in closet and en-suite bath with a walk-in shower. The finished lower level includes a half bath, laundry area, and a large utility/workshop room. A pine-accented bonus room offers a cozy spot for relaxing or entertaining, with space for guests or hobbies. A single-car garage is located under the home with interior access, and a second detached garage provides extra parking and storage. A large covered front porch invites you to sit, swing, and enjoy the peaceful surroundings, extending the home's living space outdoors. Just minutes from Pleasant Mountain, Moose Pond, and downtown Bridgton, this home offers easy access to year-round recreation, dining, shopping, and healthcare.

Listing Tools (detailViewNewGen)

Property Details of 144 Kezar Heights

Property Details

Interior Features

Exterior Features

Community

Map Location

Listing data is derived in whole or in part from the Maine IDX & is for consumers' personal, non commercial use only. Dimensions are approximate and not guaranteed. All data should be independently verified. ©2026 Maine Real Estate Information System, Inc. All Rights Reserved. equal opportunity housing logo   Privacy Policy

Abigail Douris Real Estate participates in ©2026 Maine Listings Internet Data Exchange program, allowing us to display other Maine IDX Participants' listings. This website does not display complete listings. Certain listings of other real estate brokerage firms have been excluded. Mortgage figures are estimates. Check with your bank or proposed mortgage company for actual interest rates. This product uses the FRED® API but is not endorsed or certified by the Federal Reserve Bank of St. Louis.

Hi there! How can we help you?

Contact us using the form below or give us a call.

Send Us A Message:

I agree to receive marketing and customer service calls and text messages from Abigail Douris Real Estate. To opt out, you can reply 'stop' at any time or click the unsubscribe link in the emails. Consent is not a condition of purchase. Msg/data rates may apply. Msg frequency varies. Privacy Policy.

Do not fill in this field:

This site is protected by reCAPTCHA and the Google Privacy Policy and Terms of Service apply.

Hi there! How can we help you?

Contact us using the form below or give us a call.

Send Us A Message:

Do not fill in this field:

This site is protected by reCAPTCHA and the Google Privacy Policy and Terms of Service apply.

Hi there! How can we help you?

Contact us using the form below or give us a call.

Send Us A Message:

Do not fill in this field:

This site is protected by reCAPTCHA and the Google Privacy Policy and Terms of Service apply.

Do not fill in this field:

This site is protected by reCAPTCHA and the Google Privacy Policy and Terms of Service apply.

Do not fill in this field:

This site is protected by reCAPTCHA and the Google Privacy Policy and Terms of Service apply.

Do not fill in this field:

This site is protected by reCAPTCHA and the Google Privacy Policy and Terms of Service apply.

$

Do not fill in this field:

This site is protected by reCAPTCHA and the Google Privacy Policy and Terms of Service apply.