Listed by Stephanie Gardner of Portside Real Estate Group

Listing Sold by RE/MAX Oceanside
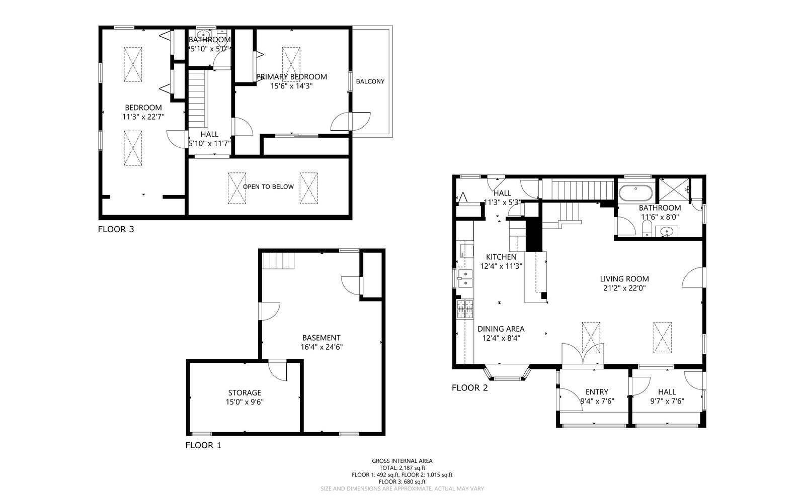
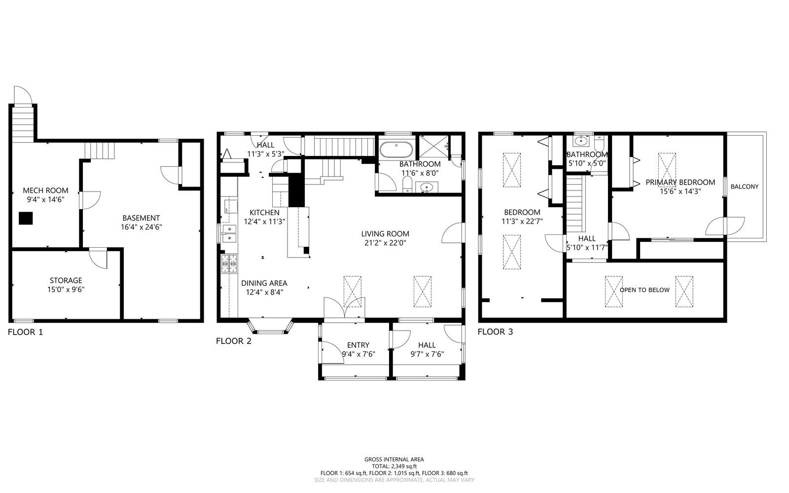
MOTIVATED SELLER! BELGRADE STREAM. Located in the heart of the Belgrade Lakes region, this quiet and peaceful waterfront home is a paddlers & fisherman's paradise! Nestled just steps from the serene waters of Belgrade Stream, this picturesque 2-bedroom, 1.5-bath home offers the perfect blend of comfort and natural beauty. Boasting 134+/- feet of waterfront, enjoy breathtaking views and abundant wildlife right from your doorstep. The welcoming sun porch entry with a wall of southern facing windows brings the outdoors in with stunning water views opens to the open-concept living main floor living space that is ideal for both relaxation and entertaining. The cozy living room has nice high ceilings with lake views and opens to the dining area and kitchen with a full bath to complete the main level. Upstairs is the larger primary bedroom, half bath and guest bedroom, while a game room with pool table included in sale, bonus room and laundry are in the basement. Step outside onto the deck, which leads directly to the dock-perfect for enjoying tranquil mornings by the water. Beautiful landscaping surrounds the home with established perennial beds and nice grassy lawn for games next to the water. Short distance to numerous public boat ramps in the Belgrade, 30 Mile & Cobbossee Watersheds, shopping & amenities in Augusta, Manchester and Waterville, as well as an hour to Sugarloaf & Saddleback ski resorts! Whether you're looking for a year-round recreational getaway or a permanent residence, this charming home is perfect for you!

Listing Tools (detailViewNewGen)

Property Details of 12 Town Line Road

Property Details

Interior Features

Exterior Features

Community

Map Location

Listing data is derived in whole or in part from the Maine IDX & is for consumers' personal, non commercial use only. Dimensions are approximate and not guaranteed. All data should be independently verified. ©2025 Maine Real Estate Information System, Inc. All Rights Reserved. equal opportunity housing logo   Privacy Policy

Abigail Douris Real Estate participates in ©2025 Maine Listings Internet Data Exchange program, allowing us to display other Maine IDX Participants' listings. This website does not display complete listings. Certain listings of other real estate brokerage firms have been excluded. Mortgage figures are estimates. Check with your bank or proposed mortgage company for actual interest rates. This product uses the FRED® API but is not endorsed or certified by the Federal Reserve Bank of St. Louis.

Hi there! How can we help you?

Contact us using the form below or give us a call.

Send Us A Message:

I agree to receive marketing and customer service calls and text messages from Abigail Douris Real Estate. To opt out, you can reply 'stop' at any time or click the unsubscribe link in the emails. Consent is not a condition of purchase. Msg/data rates may apply. Msg frequency varies. Privacy Policy.

Do not fill in this field:

This site is protected by reCAPTCHA and the Google Privacy Policy and Terms of Service apply.

Hi there! How can we help you?

Contact us using the form below or give us a call.

Send Us A Message:

Do not fill in this field:

This site is protected by reCAPTCHA and the Google Privacy Policy and Terms of Service apply.

Hi there! How can we help you?

Contact us using the form below or give us a call.

Send Us A Message:

Do not fill in this field:

This site is protected by reCAPTCHA and the Google Privacy Policy and Terms of Service apply.

Do not fill in this field:

This site is protected by reCAPTCHA and the Google Privacy Policy and Terms of Service apply.

Do not fill in this field:

This site is protected by reCAPTCHA and the Google Privacy Policy and Terms of Service apply.

Do not fill in this field:

This site is protected by reCAPTCHA and the Google Privacy Policy and Terms of Service apply.

$

Do not fill in this field:

This site is protected by reCAPTCHA and the Google Privacy Policy and Terms of Service apply.