Listed by Jason Edwards of EXP Realty

Listing Sold by Real Broker
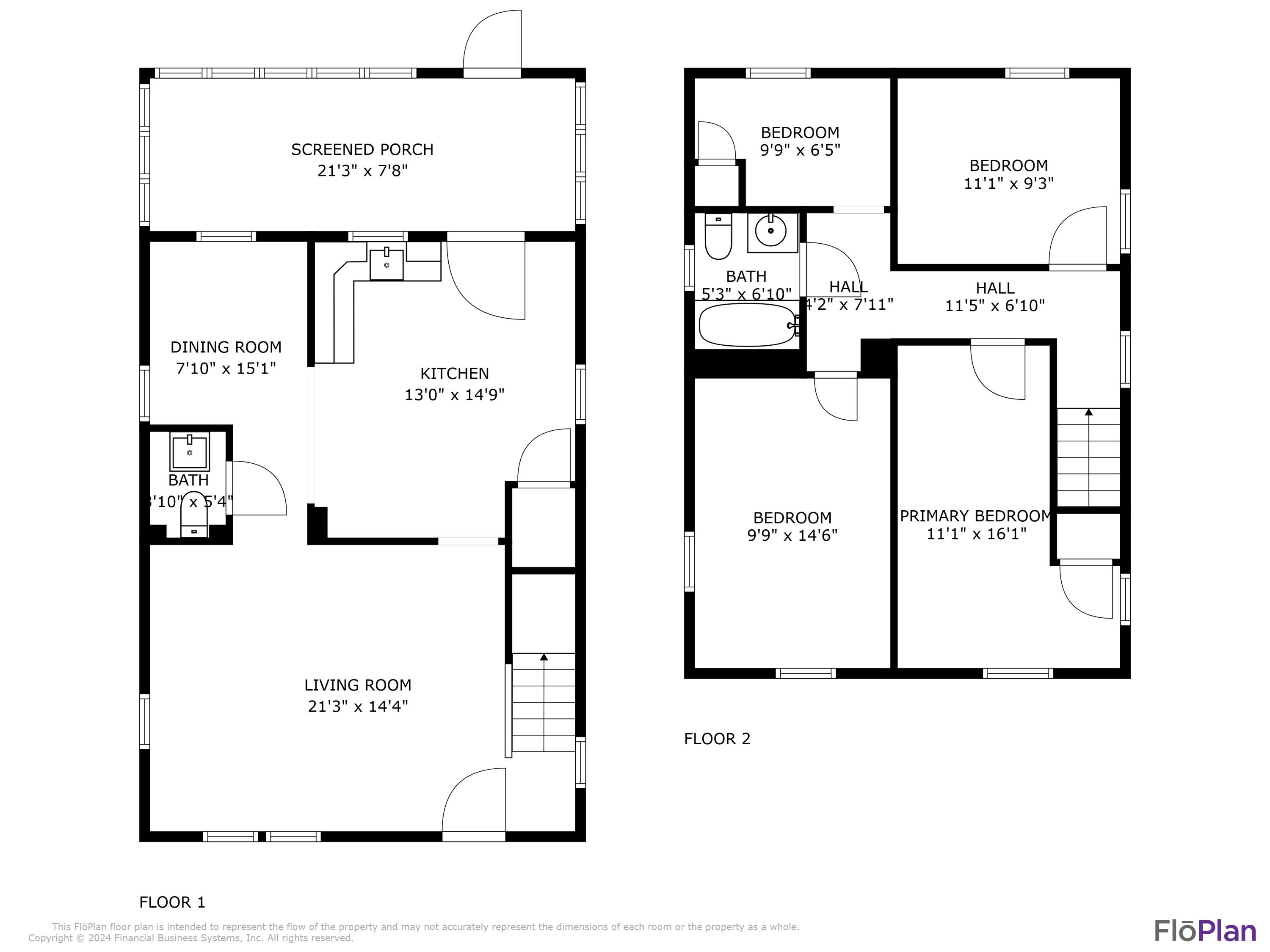
Unleash the potential of this 4-bedroom, 1.5-bath residence, ripe for revitalization and perfectly positioned for profit. Nestled in a serene neighborhood close to Waterville, Augusta, and Skowhegan, this property presents a unique chance for investors and do-it-yourself enthusiasts alike to create value from the ground up. Imagine peeling back the layers to reveal gorgeous hardwood floors that hint at the home's storied past-floors that beg to be restored to their original splendor. Envision transforming the spacious living room, bathed in natural light, into a welcoming haven for gatherings or a productive space for the entrepreneurial-minded. With nearby colleges like Thomas College, Kennebec Valley Community College, and the University of Maine - Augusta, this property offers an exceptional opportunity for rental income or a flip project. The practical layout includes a kitchen and dining area that could become the heart of the home, where new memories and meals are shared. A screened-in porch provides a tranquil retreat to enjoy the outdoors from the comfort of your home. Abundant storage solutions are found with a large garage and attic, ready to house your projects and passions. Located conveniently close to several hospitals and major amenities, yet maintaining the peace of a quiet neighborhood, this home supports a lifestyle of convenience and opportunity. Whether you're planning to hold, flip, rent, or transform this house into your dream home, the possibilities are as expansive as your vision. Don't let this chance slip by-embrace the opportunity to craft something extraordinary from this home brimming with potential.

Listing Tools (detailViewNewGen)

Property Details of 5 Western Avenue

Property Details

Interior Features

Exterior Features

Community

Map Location

Listing data is derived in whole or in part from the Maine IDX & is for consumers' personal, non commercial use only. Dimensions are approximate and not guaranteed. All data should be independently verified. ©2025 Maine Real Estate Information System, Inc. All Rights Reserved. equal opportunity housing logo   Privacy Policy

Abigail Douris Real Estate participates in ©2025 Maine Listings Internet Data Exchange program, allowing us to display other Maine IDX Participants' listings. This website does not display complete listings. Certain listings of other real estate brokerage firms have been excluded. Mortgage figures are estimates. Check with your bank or proposed mortgage company for actual interest rates. This product uses the FRED® API but is not endorsed or certified by the Federal Reserve Bank of St. Louis.

Hi there! How can we help you?

Contact us using the form below or give us a call.

Send Us A Message:

I agree to receive marketing and customer service calls and text messages from Abigail Douris Real Estate. To opt out, you can reply 'stop' at any time or click the unsubscribe link in the emails. Consent is not a condition of purchase. Msg/data rates may apply. Msg frequency varies. Privacy Policy.

Do not fill in this field:

This site is protected by reCAPTCHA and the Google Privacy Policy and Terms of Service apply.

Hi there! How can we help you?

Contact us using the form below or give us a call.

Send Us A Message:

Do not fill in this field:

This site is protected by reCAPTCHA and the Google Privacy Policy and Terms of Service apply.

Hi there! How can we help you?

Contact us using the form below or give us a call.

Send Us A Message:

Do not fill in this field:

This site is protected by reCAPTCHA and the Google Privacy Policy and Terms of Service apply.

Do not fill in this field:

This site is protected by reCAPTCHA and the Google Privacy Policy and Terms of Service apply.

Do not fill in this field:

This site is protected by reCAPTCHA and the Google Privacy Policy and Terms of Service apply.

Do not fill in this field:

This site is protected by reCAPTCHA and the Google Privacy Policy and Terms of Service apply.

$

Do not fill in this field:

This site is protected by reCAPTCHA and the Google Privacy Policy and Terms of Service apply.